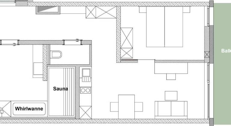
70 m² Apartment mit Hotelservice

Steyr

Steyr

Objekt:

  • Serviced apartment
  • 70m2
  • 2
  • 4
  • Haustiere: nein

Ausstattung:

Karte