Kontakt
Für Vermieter
Login
Ferienhäuser und Ferienwohnungen in Holland
Personen
1
2
3
4
5
6
7
8
mehr als 8
Suchen
Zurück zur Liste
Ferienhaus
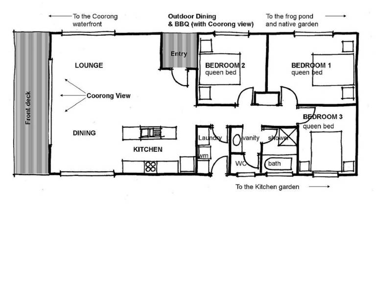
100 m² Ferienhaus
Meningie
Meningie
Objekt:
Typ
Ferienhaus
Größe
100m
2
Schlafzimmer
3
Personen
6
Haustiere: nein
Ausstattung:
Buchung
Beschreibung
Hausinfo
Karte
Beschreibung
Hausinfo
Karte